Local Commercial - LE LUC
Réf. 57936040
LE LUC - 83340
A louer Le luc-en-Provence, local commercial à côté centre Leclerc.
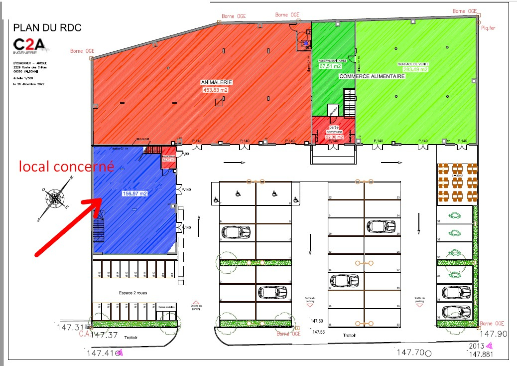
D'une surface de 154 m2, vous pourrez exercer une activité commerciale, artisanale, ou de services.
Le lot est situé en RDC et est livré hors d'eau, hors d'air. Places de parkings.
Loyer 2823 euros HT
Charges de copropriété 12 euros/m2/an et taxe foncière 20 euros/m2 en sus.
Dépôt de garantie: 3 mois de loyer.
Honoraires: 15% HT du loyer annuel HT
"Les informations sur les risques auxquels ce bien est exposé sont disponibles sur le site Géorisques : www.georisques.gouv.fr".
Surface habitable : 154 m²
Prix loyer hors charges : 2823 € / mois
Dépôt de garantie : 33876 €
D'une surface de 154 m2, vous pourrez exercer une activité commerciale, artisanale, ou de services.
Le lot est situé en RDC et est livré hors d'eau, hors d'air. Places de parkings.
Loyer 2823 euros HT
Charges de copropriété 12 euros/m2/an et taxe foncière 20 euros/m2 en sus.
Dépôt de garantie: 3 mois de loyer.
Honoraires: 15% HT du loyer annuel HT
"Les informations sur les risques auxquels ce bien est exposé sont disponibles sur le site Géorisques : www.georisques.gouv.fr".
Surface habitable : 154 m²
Prix loyer hors charges : 2823 € / mois
Dépôt de garantie : 33876 €
Les informations sur les risques auxquels ce bien est exposé sont disponibles sur le site Géorisques https://www.georisques.gouv.fr
2 823 € /mois HC
Les caractéristiques DEP / GES sont en cours de réalisation...
Réf
57936040
Type Base
Location
Type Bien
Local Commercial
Code postal
83340
Ville
LE LUC
Surface habitable
154 m²
N° dossier
29
Prix loyer hors charges
2823 € / mois




